FEATURES
機能性と居住性を両立した
ミドルスタジオ
90坪の空間に3面Rホリゾントとキャットウォークを備えた、多目的に使いやすいスタジオです。最大の特徴は、スタジオ内に専用のミーティングルームとメイクルームを併設している点。 制作チームが現場を離れることなく、効率的に進行管理や準備を行える環境を整えており、機動力の高いムービー・スチール撮影を支えます。
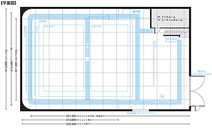
機能性と居住性を両立した
ミドルスタジオ
90坪の空間に3面Rホリゾントとキャットウォークを備えた、多目的に使いやすいスタジオです。最大の特徴は、スタジオ内に専用のミーティングルームとメイクルームを併設している点。 制作チームが現場を離れることなく、効率的に進行管理や準備を行える環境を整えており、機動力の高いムービー・スチール撮影を支えます。
To The Intermediate Point of Creation